この物件のお問合せは 092-626-5550 まで 「テナントガイドでトライアルカンパニー大型物件を見た」とお問合せください
メールでのお問い合わせはこちらから。
※この物件は特別物件となっておりますので不動産会社様のお問い合わせの際は、「テナントガイドを見た」とお伝え下さい。
| ▼建物 | |
| 物件名称 | 小倉南区貸店舗 |
|---|---|
| 物件所在地 | 福岡県北九州市小倉南区舞ヶ丘2丁目1−18 |
| 契約形態 | 賃貸借契約 |
| 建物構造 | 鉄骨構造4階建 |
| 施工年月 | 平成7年8月23日 |
| 敷地面積 | -- |
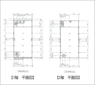
| 募集物件の階数 | 1F・2F部分 |
| 契約面積 | 1F:756u(229坪) 2F:756u(229坪) |
| 専用使用面積 | -- |
| 延床面積 | 1640u |
| 天井高 | -- |
| ▼費用 | |
| 賃料 | 1,500円/坪 |
| 共益・管理費 | なし |
| その他月額費1 | なし |
| その他月額費2 | なし |
| 敷金 | 3カ月 |
| 精算方法 | 実費 |
| 保証金 | なし |
| 保証金償却 | なし |
| 礼金 | なし |
| 権利金 | なし |
| 造作譲渡金(居抜) | なし |
| ▼設備 | |
| 水道 | 専用 |
| 下水道 | 専用 |
| ガス | 都市 |
| エレベータ | 有 |
| エアコン | 専用( 台) |
| トイレ | 各階にあり |
| 給湯室 | 有 |
| キッチン | -- |
| ネット環境 | なし |
| 床仕様 | -- |
| 消防設備 | 有 |
| セキュリティ | なし |
| 利用時間 | 制限なし |
| シャッター | -- |
| 照明設備 | 有 |
| 内装指定 | なし |
| 駐車場 | 120台 |
| ▼備考 |
| 各種(賃料・敷金・外内工事関係・その他)相談可 建物3・4階部分は住居として使用 |